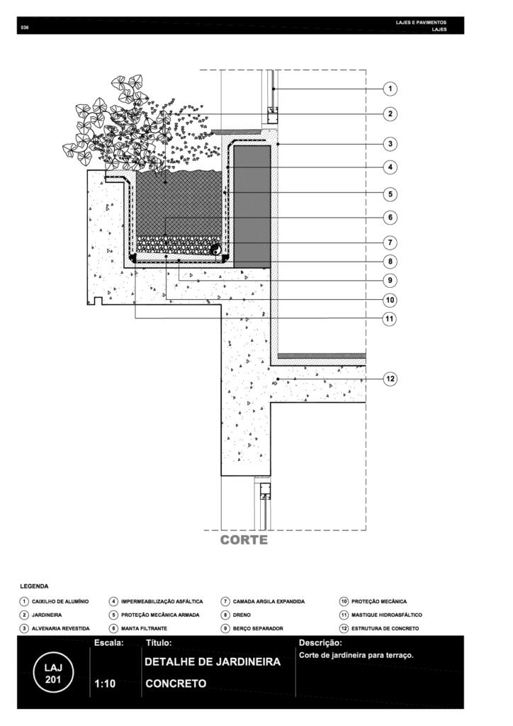
036 LAJ 201 Terraço com floreira R7

Para continuar lendo a 5% A+A, por favor, ASSINE um de nossos planos de assinatura digital: MENSAL – Acesso válido por 30 dias: R$ 30,00 / mês ANUAL – Acesso válido por 365 dias: R$ 120,00 / ano Ao assinar um dos planos, você terá acesso integral a todo o conteúdo produzido ao longo de 20 anos da 5% A+A. Todas as modalidades de plano oferecem 3 dias iniciais gratuitos e acesso exclusivo online, não sendo possível realizar download ou impressão dos arquivos. Sua assinatura nos ajuda a continuar nossa missão! CONHECER OS PLANOS DE ASSINATURA Mas se já é assinante acesse abaixo: Acesse com os seus dados facevisibility Guardar dados para futuros acessos Esqueceu a senha?